New modern design.  Low maintenance.  Energy efficient.  Stainless steel appliances.Walk or bike to campus or downtown.


Town home living at it's best!

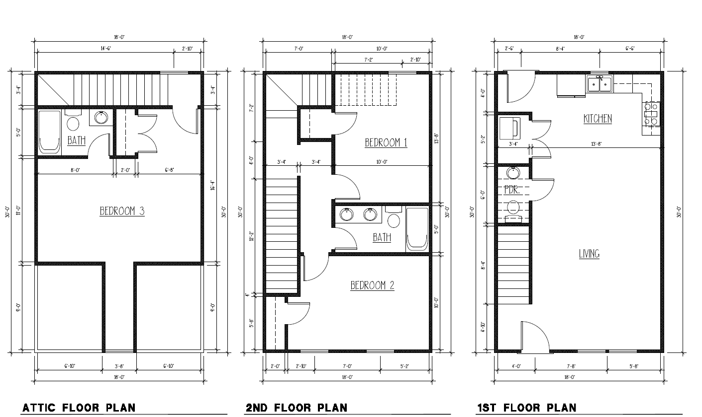
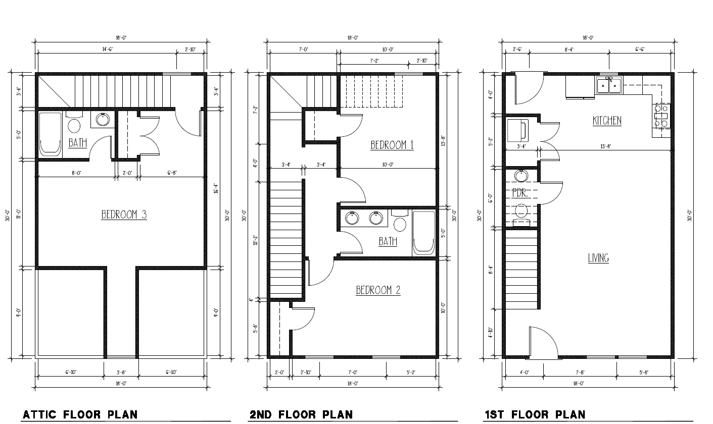
Floor Plans

A black paw print on a white background.

Pets:

Small Dogs/Cats

$25/mo. Pet Fee | $250 Pet Deposit

A black and white icon of a washing machine and a bucket of water.

Laundry:

In-Unit

A black and white icon of a plug in a circle.

Utilities Provided:

None

A car is parked next to a parking sign.

Parking:

Dedicated Spot

Explore other properties